Espaço comércio/ loja em Santarém

235 000€

  • 3
  • Útil: 287m2
  • Bruta: 310m2
  • C.E.: E
  • Ano: 1950
  • Orientação Solar: Norte, Sul
  • Ref: 63614-MCGO62397

Localização

Santarém, Santarém, Marvila, Santa Iria da Ribeira de Santarém, São Salvador e São Nicolau, Vale de Estacas (São Salvador)

VR Tour

Descrição

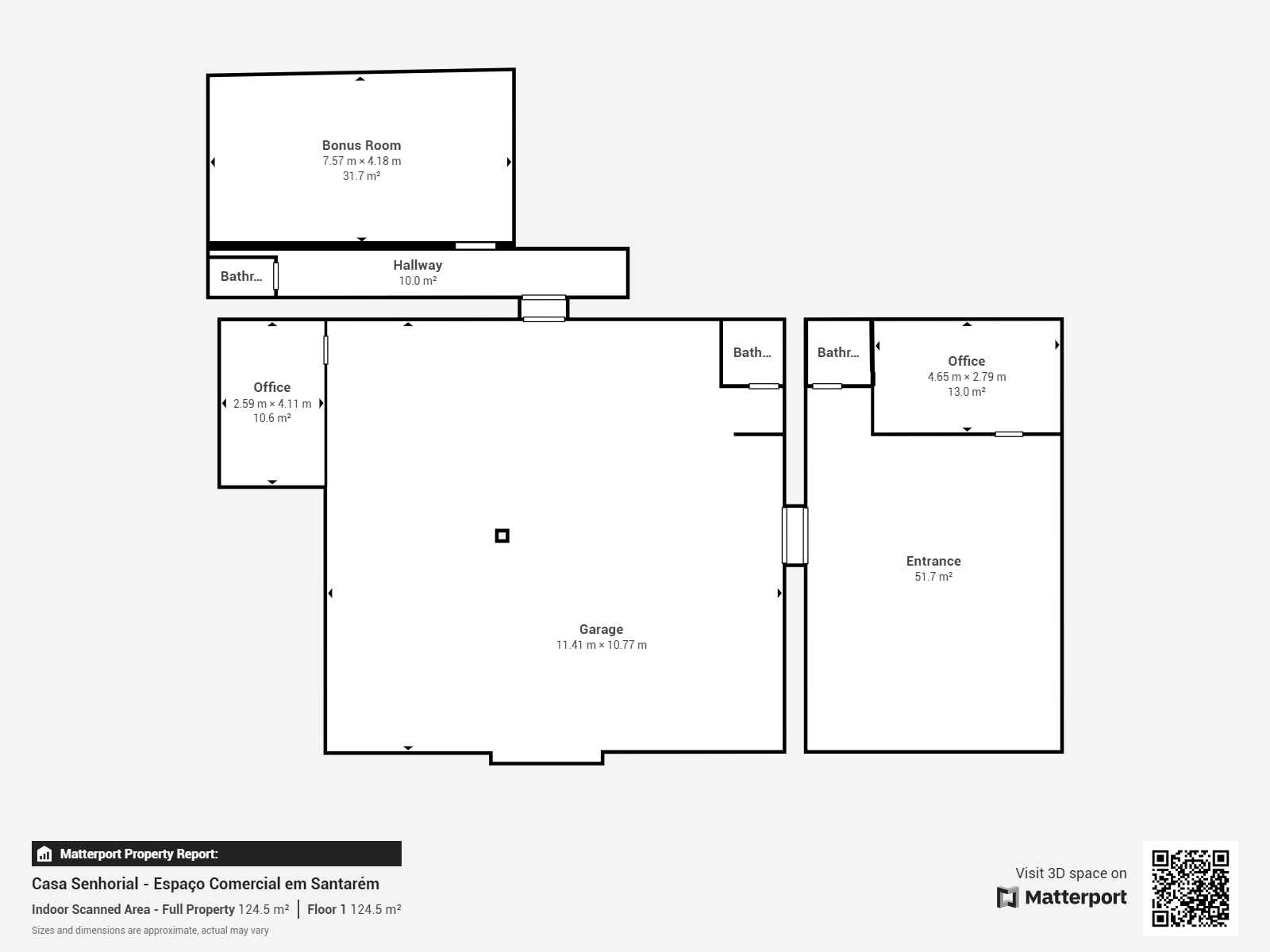
Espaço comercial e serviços no rés do chão com 287 m2 e armazém, com 2 amplas entradas, equipada com 3 casas de banho, escritório e arrumos, ideal para quem procura investir num espaço para negócio com visibilidade e acessibilidade.
Este imóvel destaca-se pela qualidade superior da construção e dos acabamentos nobres, aliando modernidade e funcionalidade. A localização é privilegiada, perto de uma vasta oferta de comércio, serviços, restaurantes, escolas, permitindo fazer todas as atividades diárias a pé. Além disso, beneficia da proximidade aos principais eixos rodoviários, como a A1 e a A2, o que facilita a mobilidade e acessos rápidos.
Não perca esta excelente oportunidade de adquirir um imóvel único para investimento.
Vem visitar.

Atributos

  • Vista da Cidade
  • Arrecadação
  • Local sossegado
  • Boa Exposição Solar

Divisões

Plantas

Nome do piso: R/C

Divisão Área Nota
WC
WC
WC
Escritório
Arrecadação
Armazém